

地址:辽宁省东港市孤山镇石人路182号
邮编:118313
电话:+86-0415-7515318
13904953243
传真:+86-0415-7512501
电子邮件:dgsjsj@163.com
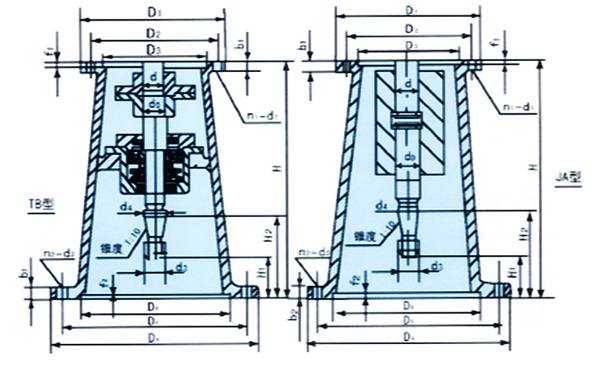
1、化工反应罐用支架外形及安装尺寸

支架外形及安装尺寸表
| 支架号 | 机型 | TB 及 JA型 | D6 | d0 | H | 重量 | |||||||||||||||||||||
| d | D1 | D2 | D3 | D4 | D5 | b | b2 | f1 | f2 | n1 | d1 | n2 | d2 | d3 | d4 | H1 | H2 | TB型 | JA型 | TB型 | JA型 | TB型 | JA型 | TB型 | JA型 | ||
| 1 | B1 | 40 | 225 | 200 | 170 | 314 | 270 | 16 | 24 | 5 | 6 | 6 | 11 | 4 | 22 | M24 | 30 | 153 | 220 | 220 | 210 | 45 | 40 | 514 | 470 | ||
| 2 | 335 | 300 | M33 | 39 | 141 | 217 | 250 | 250 | 45 | 40 | 517 | 470 | |||||||||||||||
| 3 | B3 | 55 | 340 | 310 | 270 | 392 | 350 | 18 | 26 | 6 | 6 | 6 | 11 | 4 | 26 | M33 | 39 | 169 | 250 | 295 | 290 | 55 | 55 | 585 | 540 | ||
| 4 | 442 | 400 | M42 | 50 | 203 | 300 | 245 | 330 | 70 | 55 | 675 | 600 | |||||||||||||||
| 5 | 498 | 450 | 30 | M52 | 60 | 193 | 300 | 390 | 380 | 70 | 55 | 680 | 600 | ||||||||||||||
| 6 | B4 | 80 | 400 | 360 | 316 | 548 | 500 | 22 | 30 | 6 | 6 | 8 | 15 | 8 | 30 | M64 | 70 | 201 | 325 | 435 | 425 | 85 | 80 | 736 | 730 | ||
| 7 | B2 | 50 | 260 | 230 | 200 | 350 | 315 | 16 | 24 | 5 | 6 | 6 | 11 | 4 | 22 | 260 | 50 | 500 | |||||||||
| 8 | 50 | 260 | 230 | 200 | |||||||||||||||||||||||
| 9 | B5 | 95 | 490 | 450 | 400 | 600 | 550 | 26 | 30 | 8 | 7 | 12 | 18 | 12 | 30 | M80 | 90 | 175 | 295 | 440 | 440 | 95 | 835 | ||||
2、化工反应罐配套用摆线针轮减速机
化工反应罐与减速机及支架配套对应表
| 反应罐容积 公 升 |
减速机型号 | 配套支架 | 电动机型号及功率 (KW) |
传动比 i | 输出转速 (r/ min) |
搅拌型式 |
| 50 -100 | BLD0.75-1 -i | TB-1 | Y802 -4/0.75 | 17 | 85 | 锚 式 |
| BLD0.75-1-iQ | JA-1 | 11 | 130 | 叶轮式 | ||
| 200 | BLD1.1-1-i | TB-2 | Y90S-4/1.1 | 23 | 63 | 锚 式 |
| BLD1.1-1-iQ | JA-2 | 17 | 85 | |||
| 11 | 130 | 叶轮式 | ||||
| 300 | BLD2.2 - 3 - i | TB-3 | Y100L1- 4/2.2 | 23 | 63 | 锚 式 |
| BLD2.2 - 3 - iQ | JA-3 | 17 | 85 | |||
| 11 | 130 | 叶轮式 | ||||
| 500 | BLD3.0—3—i | TB-3 | Y100L2- 4/3.0 | 23 | 63 | 框 式 |
| BLD3.0 - 2 - iQ | JA-3 | 17 | 85 | |||
| 11 | 130 | 叶轮式 | ||||
| 1000 - 2000 | BLD4.0 - 3 - i | TB-4 | Y112M -4/4.0 | 23 | 63 | 框 式 |
| BLD4.0 - 3 - iQ | JA-4 | 17 | 85 | |||
| 11 | 130 | 叶轮式 | ||||
| 3000 | ELD5.5 - 3 - 1 | TB-5 | Y132S - 4/5.5 | 23 | 63 | 框 式 |
| BLD5.5 - 3 - iQ | JA-5 | 17 | 85 | |||
| 11 | 130 | 叶轮式 | ||||
| 5000 | BLD7.5 - 4 - i | TB-6 | Y132M -4/7.5 | 23 | 63 | 框 式 |
| BLD7.5 - 4 - iQ | JA-6 | 17 | 85 | |||
| 11 | 130 | 叶轮式 |